[slideshow post_id=”3173″]
CASE STUDY 4: House in Clonsilla, June 2010
CASE STUDY TYPE: Extend or make the most of existing?
- House Type: semi-detached, single-storey cottage, Clonsilla
- Built: 1954
- Orientation: South to rear
- Occupants: 2 adults (2 grown children, both frequent visitors)
Issues:
- Need large, comfortable, gathering space for visitors.
- Client idea: extend/renovate existing Sun Room?
- Sun Room very cold in Winter.
- Living Room dark
- Dining Room cold, unused.
Proposals:
- Remove existing (badly located) WC.
- Create single sunny space with new window to south and double doors in lieu of window to west.
CASE STUDY 3: House in Whitehall, April 2010
CASE STUDY TYPE: Simon Open Door/Explore potential to extend.
Built: 1940’s
Orientation: East to rear
Occupants: 2 adults, 1 children (1yo)
Issues:
- Kitchen small, isolated
- Inadequate space for growing family
- No connection between front and rear
Proposals:
- Provide double, sliding door between front & rear rooms
- Remove wall between kitchen & dining
- Create Utility/Storage area in existing kitchen space
- Create play area in existing dining space
- Open up wall to rear of house
- Provide rear extension, say 4.8m deep, for kitchen/dining/family area
- Provide linear kitchen on one wall with 3m long table opposite.
- Provide additional table for computer, plus couch and rug for play
CASE STUDY 2: HOUSE IN LUCAN, APRIL 2010
CASE STUDY TYPE: OPTIMISE EXISTING SPACE
Built: 1960’s
Orientation: north-west to rear
Occupants: 2 adults, 2 children (2,4)
Issues:
- Dining Room dark
- “Sun Room” cold, unused
- Kitchen overwhelming/over-scaled
Proposals:
- Block up door to side passage
- Provide double doors in lieu of window in kitchen
- Fit new kitchen with 1 run of wall units and island unit
- Replace Living/Dining hinged doors with sliding doors
- Fit wall-mounted desk and shelves in Dining Room
- Insulate walls of Sun Room to create TV Room
- Reduce size of side window to accommodate TV
- Provide rooflights to TV Room to light Dining area
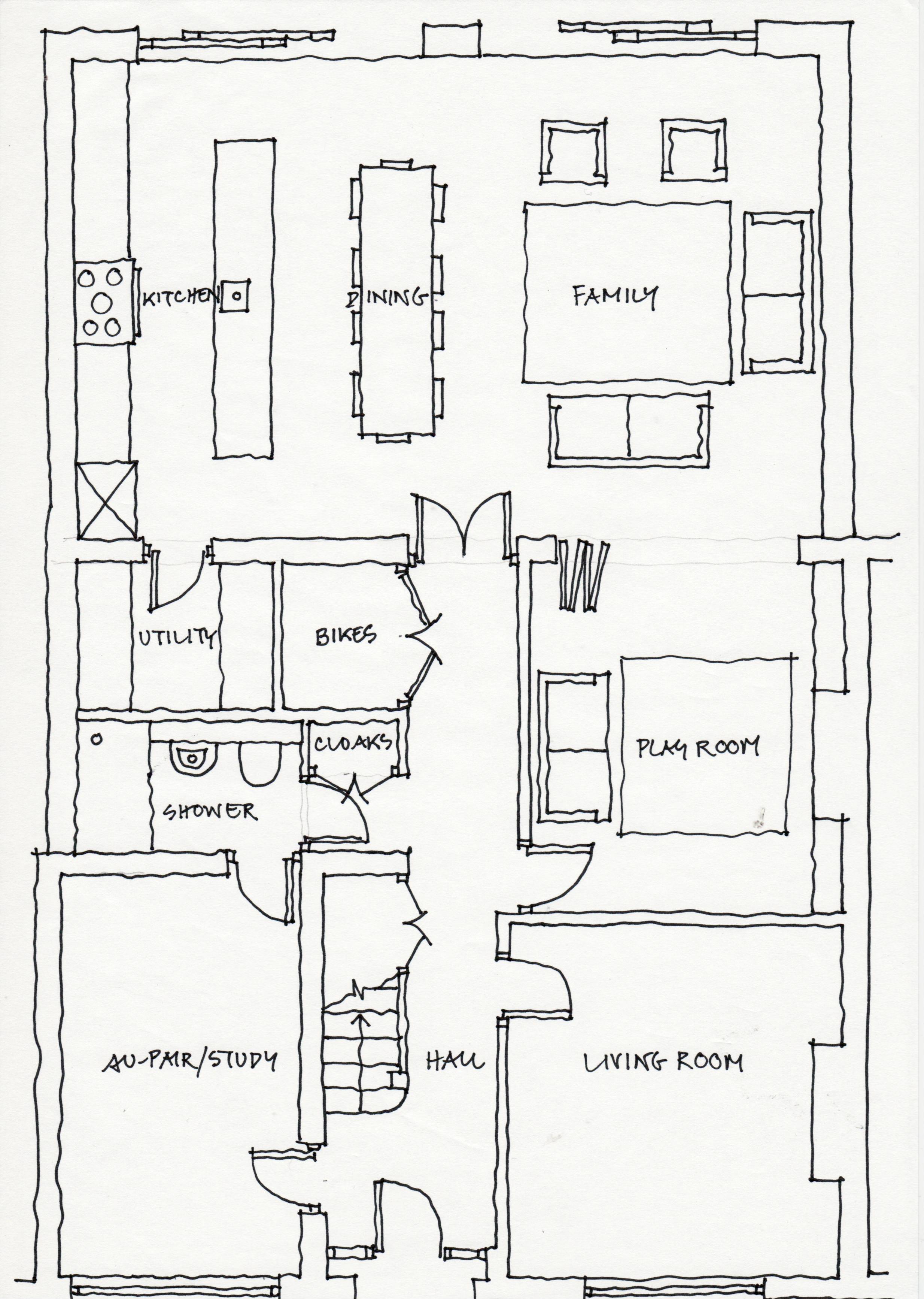
CASE STUDY 1: HOUSE IN ARTANE, APRIL 2010
CASE STUDY TYPE: REAR EXTENSION
House Type: semi-detached with garage
Built: 1950’s
Orientation: West to rear
Occupants: 2 adults, 2 children (9,6,4)
Issues:
- Convert garage
- Provide rear extension
- Optimise storage
Proposals:
- Full width rear extension 5.4m deep
- Linear kitchen plus island, dining and family areas here
- Utility, bikes & shower in existing kitchen
- Play Room in existing dining room, as alcove off rear space
- Convert garage to au-pair’s room/study

















